6 locali in vendita

Catania, Piazza Cavour - Borgo
€ 285.000
6 locali 6 locali
167 Mq 167 Mq
3 bagni 3 bagni

6 locali in vendita

Catania, Piazza Cavour - Borgo

Descrizione annuncio

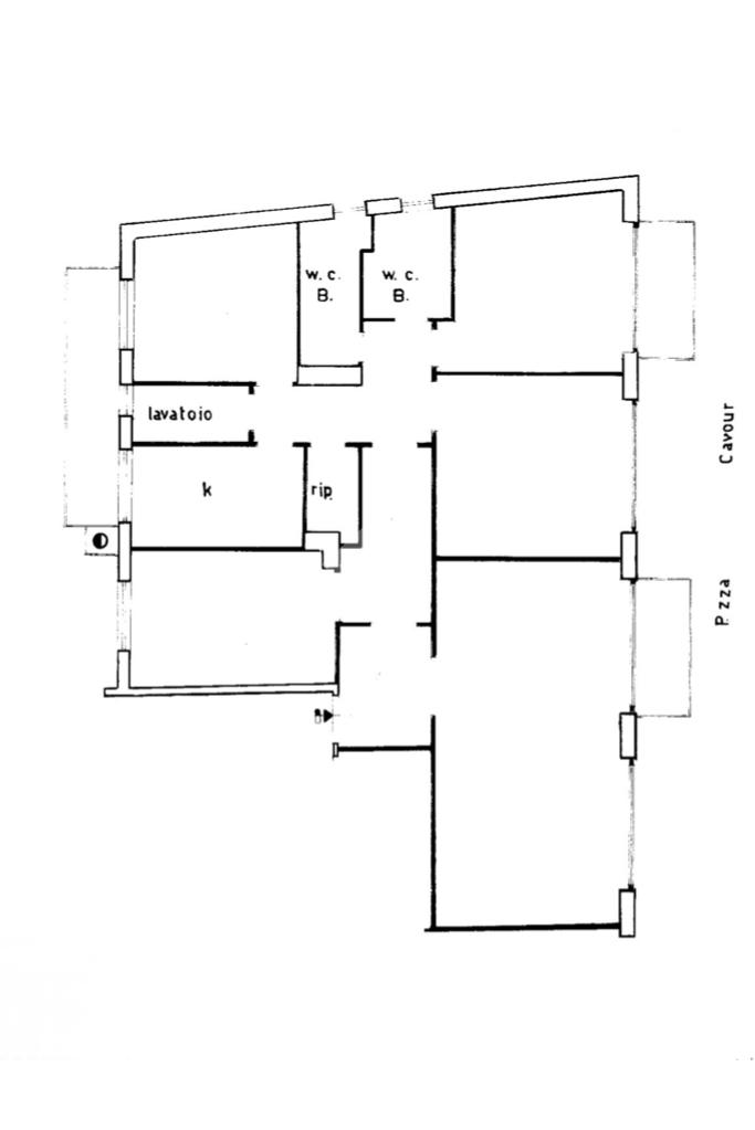
BORGO - PIAZZA CAVOUR: Proponiamo in vedita, nella centrale e servita zona della Via Etnea centrale e più precisamente in Piazza Cavour, un elegante e pregevole immobile di 6 vani di circa 167 metri quadri, posto al secondo piano di uno stabile portierato e servito da ascensore. L’immobile è composto da 4 ampie camere da letto ben disimpegnate, ed un salone doppio divisibile, oltre accessori.

Dall'ingresso accediamo sull’ampio disimpegno, salone doppio divisibile con finestra e balcone che sporgono su Piazza Cavour. Dal corridoio accediamo alle quattro camere da letto di ampia metratura, di cui due balconate e due finestrate. 2 bagni ristrutturati, di cui uno con vasca e l’altro con box doccia. Da un disimpegno, andiamo alla cucina semi abitabile, dove attigua troviamo la lavanderia con triplo servizio. A concludere la soluzione un comodo ripostiglio.

La soluzione abitativa si presta oltre che come civile abitazione, ad investimento grazie all'ampia metratura delle stanze ben disimpegnate tra di loro, ed alla presenza di tripli servizi, che lo rendono ideale sia come studio associato di qualsiasi genere o come struttura ricettiva.

Situato in una zona centrale e ben servita, questa proprietà è un'opportunità unica di vivere il connubio perfetto tra spazio, comfort e un'ubicazione ineguagliabile.

E' possibile visionarlo previo appuntamento telefonico allo 0950923688 o anche Whatsapp al 3513830273.

Mostra tutto

Nelle vicinanze

Trasporto pubblico Trasporto pubblico
Borgo
Borgo
550 m
Giuffrida
Giuffrida
810 m
Catania Borgo
Catania Borgo
560 m
stazione di Borgo
stazione di Borgo
570 m
Cavour Sud
Cavour Sud
60 m
Ricariche auto elettriche Ricariche auto elettriche
Catania Cavour | EnelX
120 m
Catania Sant'Euplio | EnelX
270 m
Catania Rosolino Pilo | EnelX
410 m
Catania Santa Maria di Gesù | EnelX
620 m
Catania Paisiello | EnelX
860 m
Scuole Scuole
Istituto Maria Ausiliatrice
250 m
Scuola secondaria di I grado Quirino Maiorana
320 m
Istituto Tecnico Commerciale Statale "Giuseppe De Felice Giuffrida"
320 m
Istituto Musicale "Vincenzo Bellini"
380 m
Scuola elementare Casa della Carità
380 m
Farmacia Farmacia
Parafarmacia "Orto Botanico"
70 m
Farmacia San Giorgio
120 m
Farmacia Minerva
210 m
Plant Pharma
250 m
Parafarmacia dott.ssa Mattia Liliana Irene
330 m
Ospedali Ospedali
Presidio ospedaliero Garibaldi Centro
840 m
Ospedale Garibaldi Presidio San Luigi - Santi Currò
980 m
Presidio ospedaliero Santa Marta
1,3 Km
Ospedale "Ascoli-Tomaselli"
1,5 Km
Presidio ospedaliero Gaspare Rodolico
1,9 Km
Supermercati Supermercati
Decò Maxistore
140 m
Simply Market
350 m
Crai
370 m
Forte
400 m
G.M. Supermercati
540 m
Negozi Negozi
Le specialità del fornaio
60 m
Intimo
70 m
A Muddichedda gluten free
80 m
Panificio Tre Spighe
100 m
Negozi
110 m
Bar Bar
Street of the beer
400 m
Black Sheep Beerstore
510 m
Mr. Hyde
770 m
Terry
790 m
Slim
790 m
Ristoranti Ristoranti
Don Mimmo
10 m
Pizzeria gourmet La Piazza
70 m
Al Cortiletto
90 m
I Frati
160 m
Quick Pizza - La Terrazza
170 m
Mostra tutto

Caratteristiche

Rif.:
61103739
Piano:
2 di 5 con ascensore (Piano medio)
Balconi:
2
Camere da letto:
4
Arredamento:
Assente
Condizionamento:
Autonomo
Mostra tutto
Prezzo Prezzo
€ 285.000
Rata mutuo Rata mutuo
€ 1.354 / mese
Spese annue Spese annue
€ 1.000
Proponi il tuo prezzoProponi il tuo prezzo

Classe Energetica

E
E
E
E
E
E
E
E
E
EP globale non rinnovabile:
175.00 kW h/m² anno
EP globale rinnovabile:
175.00 kW h/m² anno
EP invernale del fabbricato:
EP estiva del fabbricato:
Anno di costruzione:
1970
Riscaldamento:
Autonomo
Tipo impianto:
Ad aria
Tipo alimentazione:
Altro

Ti interessa visionare l'immobile?

Fissa un appuntamento  Fissa un appuntamento

Richiedi informazioni

Clicca su Leggi per aprire l'informativa
* Questi campi sono obbligatori

Calcola il tuo mutuo

Semplice e senza impegno
Anticipo

( % )
Mutuo

( % )

pochi semplici passi

inserisci i tuoi dati
Questionario completato
Grazie per aver richiesto un appuntamento senza impegno con un nostro Consulente del Credito e Assicurativo.

Hai inserito correttamente tutti i dati necessari e a breve riceverai una e-mail con un link da convalidare per inviare i tuoi dati.
Affiliato
Aldamedia Group Srl
Via Filocomo, 48 95131 Catania (CT)

Il nostro staff


  • Alfio Conti
    Affiliato

  • Celeste Agata Lucia Cascio
    Collaboratrice

  • Daigoro Sanfilippo
    Affiliato
Via Filocomo, 48 95131 Catania (CT)
Zona: Borgo-Etnea-Piazza Santa Maria di Gesù
Mostra su mappa
Affiliato
Aldamedia Group Srl
Via Filocomo, 48 95131 Catania (CT)

2026 Tecnocasa Franchising S.p.A. - P. IVA 08365160152 - Via Monte Bianco 60/A 20089 Rozzano (MI). Ogni agenzia ha un proprio titolare ed è autonoma. Privacy policy | Policy utilizzo | Cookie policy